property_gallery_img

Аденор

2 Легла 2 Бани 217.5 m2
Цена по запитване
property_gallery_img_6118
property_gallery_img_6117
property_gallery_img_6116
property_gallery_img_6115
property_gallery_img_6113
property_gallery_img_6112
property_gallery_img_6114
property_gallery_img_6119

Описание

Строителство на къща от трупи за терен с наклон

Къщата „Аденор“ е специален проект, който се отличава с нестандартна форма и е изградена от борови трупи. Благодарение на големите прозорци, домът е изпълнен с естествена светлина, която създава уютна атмосфера за комфортно обитаване. Необичайната, но симетрична форма на сградата напомня на пеперуда или цвете, което прави екстериора елегантен и визуално привлекателен.

Визуализациите на проекта „Аденор“ показват просторна тераса, изградена върху колони, която отлично допълва сутерена и наклонения терен, придавайки на къщата вид на уютен и модерен ваканционен дом. Проектът е отличен пример за хармонично вписване на цилиндрована дървена конструкция в природната среда.


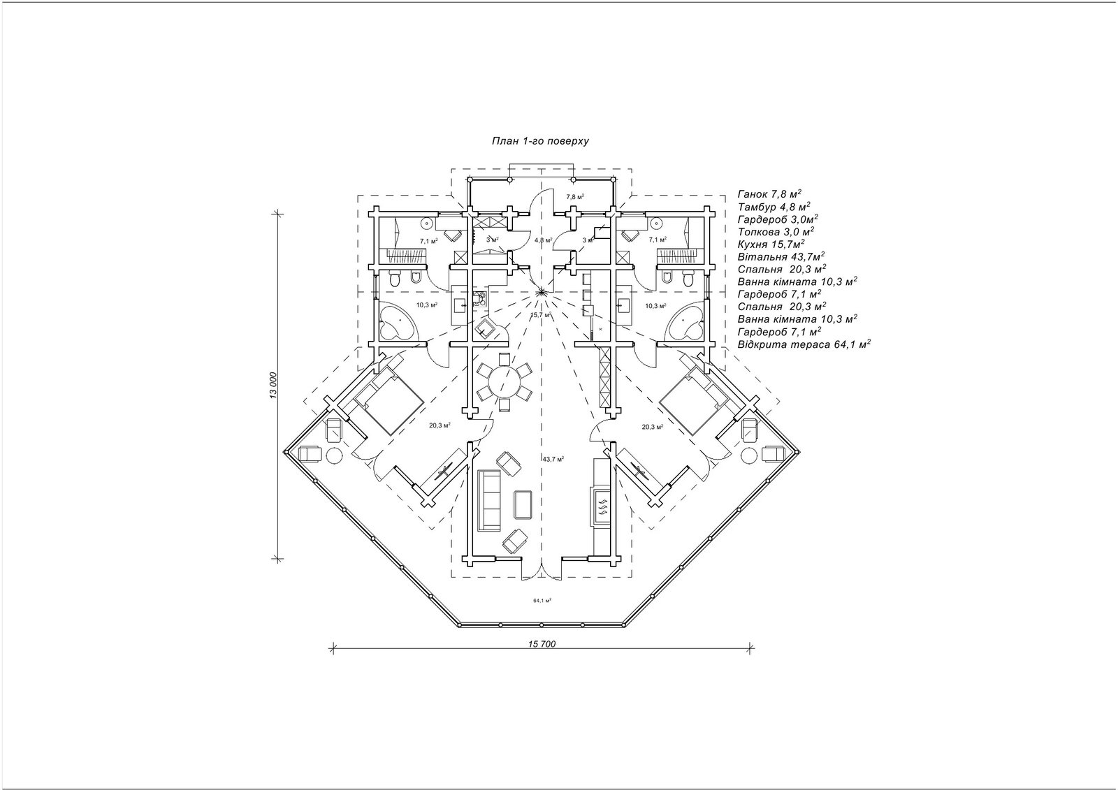
Дървена къща „Аденор“ за терен с наклон – площ 217,5 м²

Планът на едноетажната къща включва: веранда, входно антре, гардеробна, котелно помещение, кухня и дневна с площ от 43,7 м². Особено внимание заслужава нестандартното разпределение и формата на помещенията. От двете страни на дневната, като слънчеви лъчи, са разположени две спални, всяка с площ от 20,3 м², както и две бани по 10,3 м². Всяка от баните е допълнена с гардеробно помещение с площ от 7,1 м². Спалните имат интересна форма с шест ъгъла, което предлага невероятна възможност за създаване на оригинален интериор. Откритата тераса с площ от 64,1 м² осигурява много пространство за отдих на открито и наслаждение на заобикалящата природа.


Уникален проект за нестандартни идеи

Къщата „Аденор“ има оригинално разпределение, изпълнено с естествена светлина и красиви заоблени форми на дървените стени. Този проект е предназначен за собственици на терени с нестандартен релеф и творчески подход, тъй като съчетава необичайни архитектурни решения с класически материал – борови трупи.

Ако търсите най-креативните проектни решения за изграждане на собствен дом, обърнете се към „Дървен Дом“, където най-смелите идеи получават професионална реализация в естествено дърво!

 

Общ преглед

ID

6120

Тип

Вили за отдих

Спални

2

Бани

2

Размер

217.5m2

Допълнителен преглед

Прикачени файлове към имоти

От нашата галерия

Етажни планове

Вашият коментар

Вашият имейл адрес няма да бъде публикуван. Задължителните полета са отбелязани с *

Оставете съобщението си

Намерете вашия имот

© 2025 Дървен Дом. Всички права са запазени.

Сравни