Проектът „Амстердам“ представлява модерен и стилен дом за целогодишно обитаване, отличаващ се със смела и елегантна визия. Луксозните къщи от този тип винаги подчертават индивидуалността и изтънчения вкус на своите собственици. Богатият външен облик, съчетан с прозорци в различни размери и форми, придава на фасадата характер и неповторимост. Впечатляващ отвън и практичен отвътре, този проект предлага уют и комфорт във всяко кътче на дома. Къща „Амстердам“ се вписва хармонично във всякакъв ландшафтен дизайн, като го допълва с класа и стил.
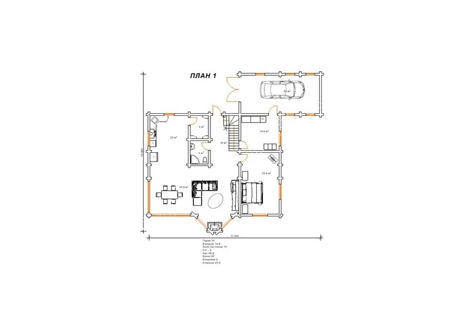
Оборудвайки тази просторна резиденция с мебели от естествени материали, ще постигнете усещане за лекота, свобода и естествен уют. Освен приятната атмосфера, проектът се отличава с прецизно планиране и внимателно обмислени функционални зони. Разпределението включва всички необходими помещения за комфортен живот, както и гараж. Особено впечатляваща е дневната зона, която се простира на две нива и оформя ефект, познат като „втори светъл етаж“. Благодарение на това архитектурно решение, интериорът придобива допълнителен обем и светлина. Практичността на проекта се допълва и от наличието на обособен офис – идеален за дистанционна работа или лични проекти, като осигурява ясно разграничение между зоните за отдих, работа и забавление.
Луксозните дървени къщи са създадени за хора, които ценят съвременната естетика, уникалната архитектура и високото качество на живот. Ако търсите дом, който да отразява вашата индивидуалност и да предлага истински комфорт, проектът „Амстердам“ е отличен избор. „Дървен Дом“ с радост ще ви помогне да превърнете мечтания си дом в реалност.