property_gallery_img

Анаит

4 Легла 2 Бани 297.9 m2
Цена по запитване
property_gallery_img_6400
property_gallery_img_6397
property_gallery_img_6396
property_gallery_img_6395
property_gallery_img_6401
property_gallery_img_6398
property_gallery_img_6399

Описание

Строителство на къща по поръчка – 13 x 18 м с план

Ако обмисляте изграждането на просторен и елегантен извънградски дом, проектът „Анаит“ определено заслужава вниманието ви. Това е съвременна и стилна двуетажна дървена къща с впечатляващо вътрешно пространство, в което се съчетават модерна архитектура и функционално разпределение.

Проектирана специално за голямо семейство, къщата разполага с четири спални – две на първия етаж и още две на втория. Просторната застроена площ от 13,2 на 17,8 метра позволява свободно планиране и персонализиране на вътрешното оформление според нуждите на обитателите.

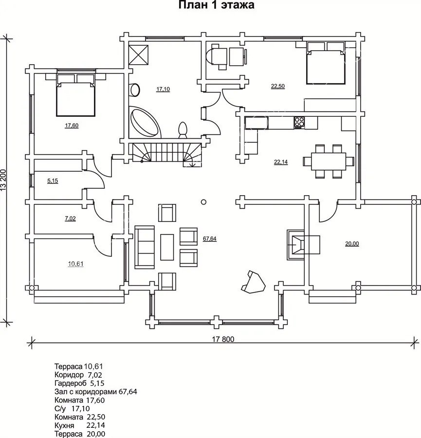
Архитектите на „Дървен Дом“ предлагат следната концепция за първия етаж: просторна дневна, две спални, голяма баня, удобна кухня и две тераси. Включено е и допълнително помещение за гардероб, което придава още повече уют и организация на дома.

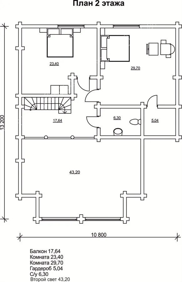
На втория етаж са предвидени още две спални, баня и втори гардероб. Изключителен акцент в интериора е ефектът на „втория светлинен етаж“ над дневната – отворено пространство с високи тавани, което носи усещане за разкош и въздушност. Благодарение на тази концепция, домът получава изобилие от естествена светлина, което създава възможности за креативно интериорно оформление с акцент върху светлинни и декоративни решения.

Къща по проект „Анаит“ – 297,9 кв.м

Този впечатляващ дом е част от разнообразното портфолио на „Дървен Дом“, където ще откриете още проекти на вили, бани, беседки и дървени къщи за целогодишно живеене.

Когато възникне въпросът „Колко струва изграждането на такава къща?“, важно е да знаете, че „Дървен Дом“ предлага конкурентни цени без участието на посредници – директно от производителя. Това гарантира достъпност и прозрачност в ценообразуването.

Проектът „Анаит“ е предназначен за хора, които ценят уюта, красотата и свободата на живот в собствен дървен дом – място, което не е просто сграда, а истински дом за щастлив живот.

Общ преглед

ID

6402

Тип

Вили за отдих

Спални

4

Бани

2

Размер

297.9m2

Допълнителен преглед

Прикачени файлове към имоти

От нашата галерия

Етажни планове

  • Спални 2
  • Бани 1
  • Спални 2
  • Бани 1

Вашият коментар

Вашият имейл адрес няма да бъде публикуван. Задължителните полета са отбелязани с *

Оставете съобщението си

Намерете вашия имот

© 2025 Дървен Дом. Всички права са запазени.

Сравни