property_gallery_img

Вилла

3 Легла 1 Баня 185.94 m2
Цена по запитване
property_gallery_img_6305
property_gallery_img_6308
property_gallery_img_6309
property_gallery_img_6306
property_gallery_img_6307
property_gallery_img_6311
property_gallery_img_6310

Описание

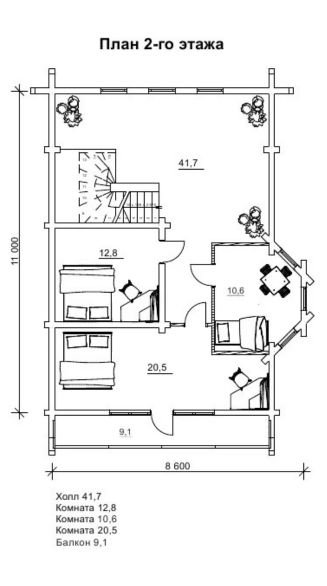
Проект на дървен дом „Вила“ 8,6 × 13 м

Предлагаме ви проект на шикозен, многофункционален дървен дом с красив балкон и оригинална фасада. В котиджа „Вила“ са проектирани два етажа, където има тераса, коридор, хол, трапезария, санитарен възел, стълбище и три спални. Ако искате да построите дървен дом, проектът „Вила“ е отличен избор за вас и вашето семейство за постоянно живеене извън градската суматоха. Оцилиндрованата греда придава още по-голям ефект на външния вид. Уют, комфорт и незабравими моменти ще донесе животът в този дървен особняк.

Външният облик е богат — прозорци с различни размери и форми придават индивидуалност и характер. Шикозният балкон, с оригинални перила под козирка на мансарден етаж, интересно украсява една от фасадите. Впечатляващ отвън, практичен и удобен отвътре — елитният котидж „Вила“ подарява на собствениците си истински отдих и почивка от всекидневието.

Дървен дом „Вила“ — площ 185,94 м²

Такъв проект ще изглежда ефектно във всеки ландшафтен дизайн. Украсете този особняк с натурална мебел, която може да се намери чрез каталозите на Дървен Дом, и ще създадете невероятно усещане за лекота, естественост и разкрепостена атмосфера в дома. Освен топла и приветлива атмосфера, „Вила“ се характеризира с много добре обмислена и висококвалифицирана планировка.

Проектът „Вила“ наистина ще се превърне в съкровище за вашия имот — не само заради външната му привлекателност, но и поради функционалността и особата атмосфера, която носят само дървените постройки. Вашето семейство и гости ще се наслаждават, ще хвалят вашия стил и вкус, пиейки чай на терасата вечер, наблюдавайки залеза.

Общ преглед

ID

6312

Тип

Къщи с балкони

Спални

3

Бани

1

Размер

185.94m2

Допълнителен преглед

Прикачени файлове към имоти

От нашата галерия

Етажни планове

  • Бани 1
  • Спални 3

Вашият коментар

Вашият имейл адрес няма да бъде публикуван. Задължителните полета са отбелязани с *

Оставете съобщението си

Намерете вашия имот

© 2025 Дървен Дом. Всички права са запазени.

Сравни