property_gallery_img

Гавань

4 Легла 2 Бани
Цена по запитване
property_gallery_img_6314
property_gallery_img_6316
property_gallery_img_6317
property_gallery_img_6318
property_gallery_img_6319
property_gallery_img_6320
property_gallery_img_6321

Описание

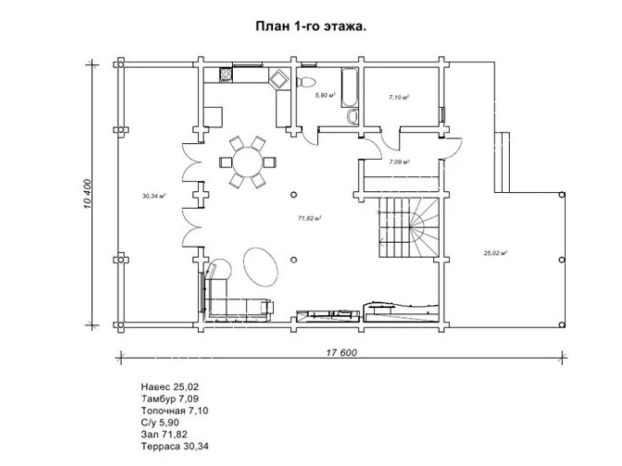
Проект на дървен дом „Гаван“ 10,4 × 17,6 м

Предлагаме ви проект „Гаван“ — просторен дървен дом от оцилиндрова греда, подходящ за отдих и за постоянно живеене. Удобна и същевременно рационална планировка, просторна тераса и навес за автомобил правят този проект много привлекателен за реализиране. Интересният външен дизайн на коттеджа създава и особена атмосфера.

Дървен дом „Гаван“ — площ 258 м²

Оригиналната форма на дома е елегантно съчетана с всеки ландшафт. Проектът визуално напомня аристократичен особняк, но съчетава и съвременни решения и функционалност. Ако ще го използвате за отдих със семейството и приятели — на терасата може да поставите тенис маса или билярд. А ако предпочитате по-спокоен отдих — хамак или мека мебел биха били отличен избор.

Тъй като домът разполага с три спални, той може да побере много хора. Можете да адаптирате помещенията според нуждите — спортна зала или офис. Проектът съдържа и котелно помещение, което говори за възможност за целогодишно живеене. А за най-добър дизайн на помещенията можете да се запознаете с информацията в нашия раздел „Планировка дома: как разумно спланировать помещения и жить комфортно“.

Проектът „Гаван“ взема предвид всички изисквания на съвременния клиент, който планира да закупи двуетажен дом от греда — било то за сезонен отдих, било то за целогодишна обител.

Общ преглед

ID

6322

Тип

Вили за отдих

Спални

4

Бани

2

Допълнителен преглед

Прикачени файлове към имоти

От нашата галерия

Етажни планове

  • Спални 1
  • Бани 1
  • Спални 3
  • Бани 1

Вашият коментар

Вашият имейл адрес няма да бъде публикуван. Задължителните полета са отбелязани с *

Оставете съобщението си

Намерете вашия имот

© 2025 Дървен Дом. Всички права са запазени.

Сравни