property_gallery_img

Диляра

3 Легла 2 Бани 186 m2
Цена по запитване
property_gallery_img_6423
property_gallery_img_6424
property_gallery_img_6426
property_gallery_img_6427
property_gallery_img_6425
property_gallery_img_6428
property_gallery_img_6429

Описание

Строителство на дървена къща 9 на 12 м

Оригиналният проект на двуетажна дървена къща „Диляра“ демонстрира как традиционният строителен материал – цилиндричният дървен материал – може успешно да се съчетае със съвременни технологии при изграждането на сгради в стил хай-тек. Общата площ на къщата е 186 кв.м, а застроената площ е с размери: дължина – 8,8 м, ширина – 11,9 м. Впечатляващите панорамни прозорци от пода до тавана и второто ниво над дневната придават уникален характер на дома. Изчистените линии, модерните форми и изобилието от естествена светлина го отличават от стандартните дървени къщи.

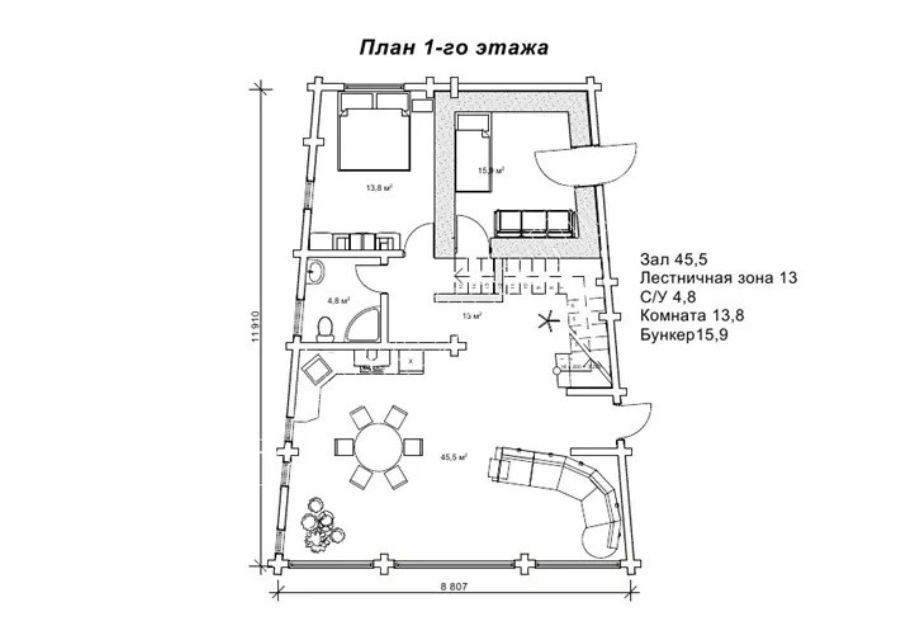
Разпределение на къщата „Диляра“ – 186 кв.м

Първият етаж включва просторна дневна с площ от 45,5 кв.м, две стаи съответно по 15,6 кв.м и 13,8 кв.м, стълбищна зона – 13 кв.м, както и санитарно помещение – 4,8 кв.м. Просторното вътрешно разпределение осигурява комфорт и функционалност за цялото семейство.

Интересна особеност в проекта е наличието на специален бункер – елемент, съобразен с условията на живот в Израел, където е реализиран оригиналният проект.

На втория етаж се намира голямо светло помещение с площ от 29,7 кв.м, проектирано като спалня с две отделни легла, както и допълнителен санитарен възел с площ 4,8 кв.м. Стълбищната зона на етажа заема 8,9 кв.м.

Проектът „Диляра“ включва и второ ниво (втори светлинен отвор) над дневната – символ на стил, разкош и професионално архитектурно решение. Това архитектурно решение не само визуално разширява пространството, но и осигурява повече светлина в помещението, което може да бъде декорирано в различни цветови гами. Фасадата на къщата изглежда модерна, елегантна и лека.

Проектът е реализиран от Дървен Дом като модерна къща за целогодишно живеене извън града.

Общ преглед

ID

6430

Тип

Вили

Спални

3

Бани

2

Размер

186m2

Допълнителен преглед

Прикачени файлове към имоти

От нашата галерия

Етажни планове

  • Спални 1
  • Бани 1
  • Спални 2
  • Бани 1

Вашият коментар

Вашият имейл адрес няма да бъде публикуван. Задължителните полета са отбелязани с *

Оставете съобщението си

Намерете вашия имот

© 2025 Дървен Дом. Всички права са запазени.

Сравни