Впечатляващата дървена резиденция „Тангора“ очарова с просторни панорамни прозорци, живописни балкони и стабилни стени от масивен дървен материал. От пръв поглед вниманието привлича страничното крило на сградата — голямото остъклено пространство подсказва, че там може да бъде изграден зимна градина, уютна веранда или дори помещение с басейн.
Домът е проектиран с мансарден етаж, който значително увеличава функционалността и създава усещане за простор и лекота. Архитектурните особености на „Тангора“ не са случайни — те следват добре обмислено вътрешно разпределение, съчетаващо комфорт, естетика и практичност.
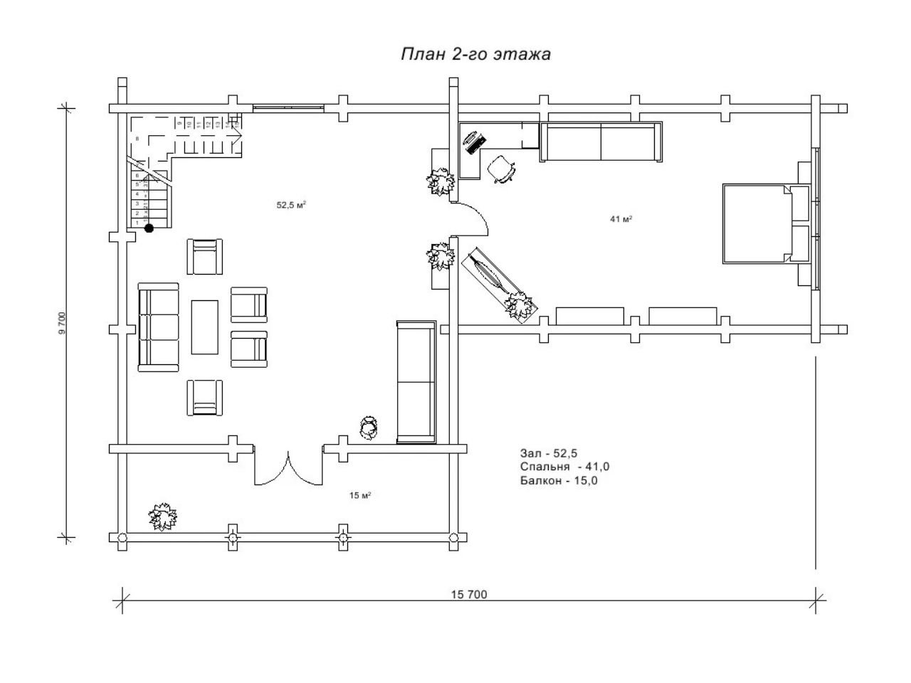
„Тангора“ се отличава със своите внушителни размери – 9,7 х 15,7 м. Общата застроена площ, включително мансардата, достига 222,5 м². Такава мащабна дървена къща е създадена за просторен и живописен парцел, сред природата и тишината.
Първият етаж започва с приветлива тераса от 15 м², следвана от входно антре и складово помещение. В централната част е разположена кухнята, свързана със стълбище към мансардата. Огромната дневна зала с площ 52,5 м² създава възможност за смели дизайнерски решения и открито пространство за семейството и гостите. Спалнята, с площ 41 м², обещава пълен комфорт и спокойствие.
Най-вълнуващата част от проекта е, разбира се, помещението с басейн — цели 41 м² водно удоволствие, отделено от жилищната зона чрез коридор, който предпазва останалите стаи от влажността. На първия етаж се намират още баня и котелно помещение. Планировката е интелигентно обмислена — предлага простор, функционалност и удобство за съвременен начин на живот.
Дървеният дом с басейн „Тангора“, изработен от специалистите на „Дървен Дом“, е създаден за хора, които ценят хармонията между природата и домашния комфорт. Потапянето в собствения басейн носи здраве, жизненост и истинска антистрес терапия.
Този ярък проект на луксозна дървена резиденция с просторни помещения и естествена топлина на материала е инвестиция в високо качество на живот — за вас и вашето семейство.