property_gallery_img

Тенлинд

4 Легла 3 Бани 150.1 m2
Цена по запитване
property_gallery_img_6594
property_gallery_img_6593
property_gallery_img_6592
property_gallery_img_6591
property_gallery_img_6590
property_gallery_img_6596
property_gallery_img_6595

Описание

Проект на дървен особняк „Тенлинд“ с четири спални

Внушителният дървен дом „Тенлинд“ създава усещане за сигурност и стабилност – дом, в който човек се чувства защитен и спокоен. Простите, ясни линии на конструкцията, квадратните прозорци, двускатният покрив и липсата на излишна декорация говорят за практичност и функционалност. Този проект е замислен така, че да предложи надеждна и здрава постройка при оптимален бюджет.

Въпреки семплата си архитектура, „Тенлинд“ притежава своя особен чар – уютната тераса под навес в предната част на къщата. Тя придава завършеност на класическата визия и създава приятно място за отдих сред природата.

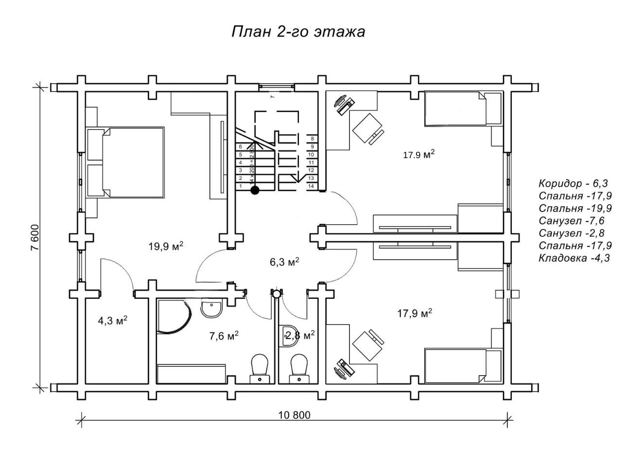
Разпределение на дървената къща „Тенлинд“ – 150,1 м²

Двуетажната къща „Тенлинд“ е с обща площ 150,1 м² и габарити 9,9 х 10,8 м, изградена от масивни оцилиндрени трупи. На първия етаж, непосредствено при входа, се намира покрита тераса – идеално място за сутрешно кафе или вечерна почивка.

Входното антре (5,5 м²) води към коридор, от който се преминава в просторна дневна с камина, обединена с кухня и трапезария в едно общо помещение. Това отворено пространство създава усещане за въздух и светлина, а липсата на прегради спестява материал и площ. На етажа са разположени още спалня, санитарно помещение и складово помещение.

На втория етаж, до който се стига по удобна дървена стълба, се намират три спални, отделна баня и още едно малко складово помещение. Благодарение на множеството спални, проектът „Тенлинд“ е идеален избор за голямо семейство или за хора, които обичат да приемат гости в уютна домашна атмосфера с горяща камина и топлина във всеки ъгъл.

Изграждане на дървен дом „Тенлинд“ до ключ

Решението да се построи собствен дом – особено мащабен и комфортен като „Тенлинд“ – е едно от най-важните в живота. От него зависят удобството, сигурността и хармонията на няколко поколения. Именно затова е важно домът да бъде надежден, топъл, устойчив и уютен, такъв, в който винаги искаш да се връщаш.

Екипът на „Дървен Дом“ има дългогодишен опит в проектирането и строителството на дървени къщи. Зад гърба ни стоят хиляди реализирани проекти и десетки семейства, които вече живеят в своите мечтани дървени домове. Ние знаем как да създадем жилище, което отразява начина ви на живот и носи истинско усещане за домашен уют.

С „Дървен Дом“ вашата мечта за собствен дом от естествено дърво започва да се превръща в реалност още днес.

Общ преглед

ID

6597

Тип

Имения

Спални

4

Бани

3

Размер

150.1m2

Допълнителен преглед

Прикачени файлове към имоти

От нашата галерия

Етажни планове

  • Спални 1
  • Бани 1
  • Спални 3
  • Бани 2

Вашият коментар

Вашият имейл адрес няма да бъде публикуван. Задължителните полета са отбелязани с *

Оставете съобщението си

Намерете вашия имот

© 2025 Дървен Дом. Всички права са запазени.

Сравни