property_gallery_img

Теноя

1 Баня 148 m2
Цена по запитване
property_gallery_img_6386
property_gallery_img_6387
property_gallery_img_6388
property_gallery_img_6389
property_gallery_img_6390
property_gallery_img_6391

Описание

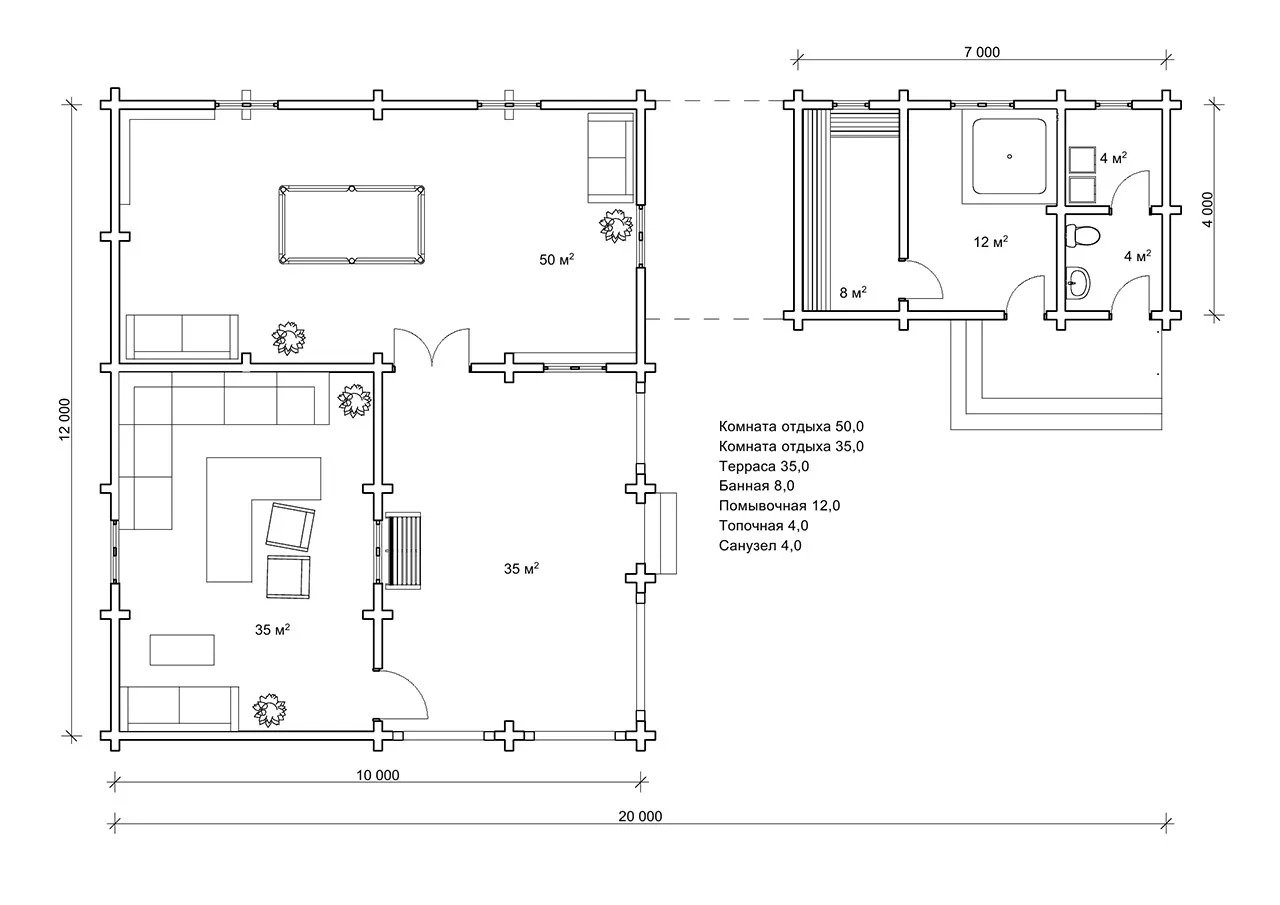
Къща с баня за ваканционен комплекс – 12 на 20 м

Проектът на къщата „Теноя“ предлага нестандартно и привлекателно решение за изграждане на сграда, подходяща за хотелски комплекс или база за отдих. Конструкцията се състои от две отделни части, обединени под една покривна конструкция, като между тях преминава тунел, който ги разделя функционално. Това архитектурно решение е вдъхновено от особеностите на терена, предвиден за строеж на комплекса.

Още при първия поглед към тази живописна постройка впечатление правят множеството открити пространства – летни тераси без покрив, където слънчевата светлина е в изобилие и създава отлична атмосфера за почивка край вода. Именно затова тази къща би изглеждала най-подходящо край плаж, река или езеро. А ако наблизо няма естествен воден басейн, чудесна алтернатива е изграждането на басейн до къщата – идеално място за разхлаждане след баня. Това ще направи дървения комплекс „Теноя“ още по-привлекателен за туристите и почиващите.

Разпределение и площ на постройката

Къщата заема значителна площ и има размери 12 на 20 метра. Първата сграда включва две просторни зали за отдих – едната с lounge зона от 35 кв.м., а другата – с площ от 50 кв.м., подходяща за билярдни маси и забавления с приятели.

Втората сграда представлява баня с всички необходими удобства: парна баня, душ кабини, санитарен възел, съблекалня и покрита входна част. Разделението между двете сгради осигурява възможност за различни активности едновременно, без посетителите да си пречат. Някои ще релаксират в lounge зоната, други ще играят билярд, трети ще се насладят на парна баня, а останалите ще се излежават на терасата. Всеки ще открие своето място за почивка.

Строителство на дървен ваканционен комплекс

Къщата с баня по проект „Теноя“ е създадена с мисъл за комфорт и удобство на посетителите, което я прави отличен избор за хотелиери и инвеститори в сферата на туризма. Дървената конструкция предлага гъвкави възможности за отдих и развлечения, които ще разнообразят престоя на гостите и ще увеличат интереса към комплекса.

Инвестицията в подобен проект не само ще разшири възможностите за предлагане на услуги, но и ще осигури бърза възвращаемост. Дървеният ваканционен комплекс „Теноя“, реализиран от „Дървен Дом“, е практично, ефективно и привлекателно решение за съвременния туристически бизнес.

Общ преглед

ID

6392

Тип

Бани

Bathroom

1

Размер

148m2

Допълнителен преглед

Прикачени файлове към имоти

От нашата галерия

Вашият коментар

Вашият имейл адрес няма да бъде публикуван. Задължителните полета са отбелязани с *

Оставете съобщението си

Намерете вашия имот

© 2025 Дървен Дом. Всички права са запазени.

Сравни