property_gallery_img

Фортуна

4 Легла 3 Бани 182 m2
Цена по запитване
property_gallery_img_6599
property_gallery_img_6603
property_gallery_img_6602
property_gallery_img_6601
property_gallery_img_6600
property_gallery_img_6604
property_gallery_img_6607
property_gallery_img_6605

Описание

План на дървена къща до ключ 9 х 12,4 м – проект „Фортуна“

Проектът на дървения дом „Фортуна“ е създаден за постоянно обитаване и впечатлява с изключително елегантна визия и редица предимства, които го правят идеален избор за извънградски имот.

На първия етаж са разположени просторна дневна, кухня, спалня, санитарно помещение и техническо помещение. Важен акцент в проекта е наличието на сауна, която осигурява възможност за пълноценен релакс и наслада от банни процедури, без да напускате дома си.

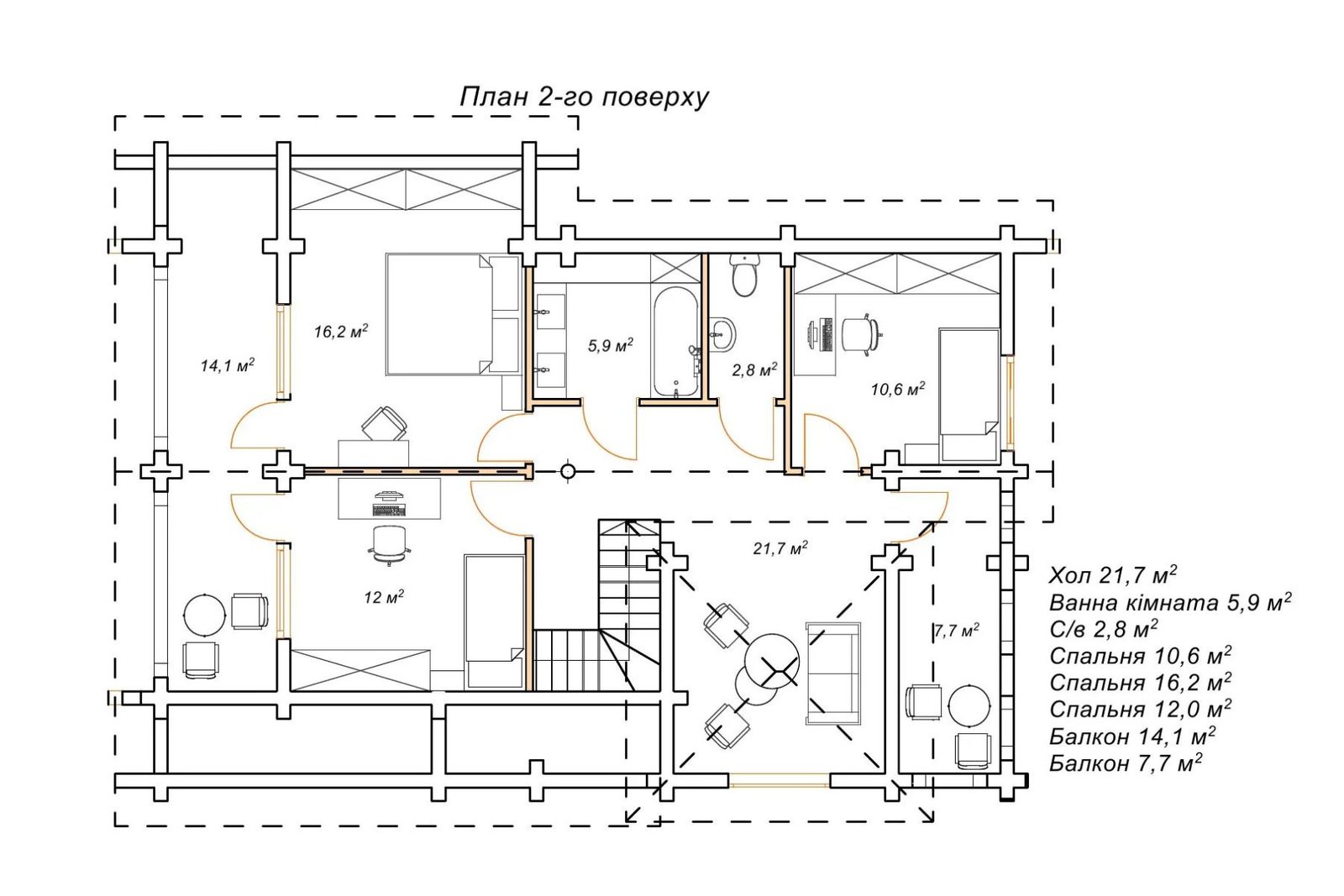
На втория етаж са предвидени три спални, баня и два балкона, които позволяват на обитателите да се наслаждават на свежия въздух и красивата гледка наоколо.

Дървена къща до ключ „Фортуна“ – 182 м²

Едно от най-интересните решения в проекта е така нареченият „втори светлинен етаж“ над дневната, който придава на вътрешното пространство допълнителен обем и усещане за лукс. Благодарение на него къщата изглежда още по-просторна и светла.

Домът е проектиран така, че в него да може удобно да живее голямо семейство. Самата постройка напомня на малък замък или приказен дворец. Изящната кула и оригиналната многоъгълна форма на фасадата придават на „Фортуна“ престижна и внушителна визия, която ще впечатли всеки гост.

Уют, естетика и вдъхновение

Къщата „Фортуна“ е създадена, за да носи радост и хармония. Вечер, когато около двора е поставено меко декоративно осветление, фасадата засиява и подчертава красивите линии на дървената конструкция.

Това е дом, в който искате да живеете с деца, да споделяте моменти със семейството си и да се наслаждавате на природата. Просторен, светъл и жизнен – той излъчва топлина и спокойствие. Представете си градината, украсена с цветя и плодни дървета, малък кът за почивка със слънчобран и два шезлонга. Място, където можете просто да легнете, да се отпуснете и да забравите за ежедневните грижи.

Такъв дом не просто се строи – той се преживява. И с екипа на „Дървен Дом“ мечтата за вашия собствен дървен дом може да се превърне в реалност.

Общ преглед

ID

6606

Тип

Вили

Спални

4

Бани

3

Размер

182m2

Допълнителен преглед

Прикачени файлове към имоти

От нашата галерия

Етажни планове

  • Спални 1
  • Бани 1
  • Спални 3
  • Бани 2

Вашият коментар

Вашият имейл адрес няма да бъде публикуван. Задължителните полета са отбелязани с *

Оставете съобщението си

Намерете вашия имот

© 2025 Дървен Дом. Всички права са запазени.

Сравни